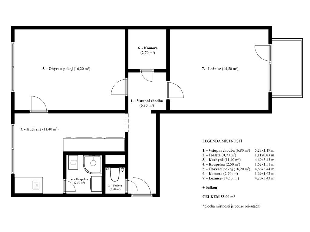
Panelový Byt 2+1 Půdorys

2020-11-08

Panelový Byt 2+1 Půdorys - Majitele nechali u steny, sousedici s loznici sousedu, udelat dukladnou zvukovou izolaci.

Headline

Next Gen Supplements Erina

Schmersal Indonesia